Batman OSB’de Yeni Arsa Tahsis Süreci Başladı

Bölgeleri Uygulama Yönetmeliği’nin “Arsa Tahsisi” başlıklı 55. maddesi kapsamında yürütülecek süreçte, yatırımcıların başvuruları 3 Kasım – 23 Kasım 2025 tarihleri arasında alınacak.

Batman OSB’de Yeni Arsa Tahsis Süreci Başladı
Advert
Yayınlama: 03.11.2025
A+
A-

Başvurular çevrimiçi yapılacak
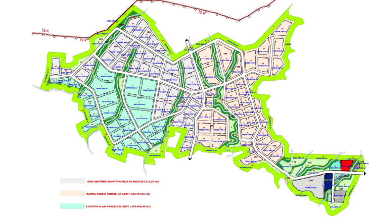
Yatırımcılar, başvurularını meydip.sanayi.gov.tr adresi üzerinden çevrimiçi olarak yapabilecek. Tahsis edilecek alanlara ilişkin harita bilgileri aynı internet sitesinde yer alırken, tahsis şartları, parsel bazlı metrekare fiyatları ve diğer detaylı bilgiler Batman OSB Bölge Müdürlüğü’nden temin edilebilecek.

Son başvuru 23 Kasım
Batman OSB yönetimi, başvuruların 3 hafta boyunca açık kalacağını ve son başvuru tarihinin 23 Kasım 2025 olduğunu hatırlattı. Yapılacak tahsis başvuruları, puanlama esasına dayalı tip değerlendirme tablosu üzerinden değerlendirilecek.

Arsa tahsisi şartları açıklandı
Tahsisler tamamen bedelsiz yapılacak. Altyapı katılım payı metrekare birim fiyatı 700 TL olarak belirlendi.

  • Tekstil sektöründe faaliyet gösteren firmaların başvuruları yalnızca Samanyolu OSB üzerinden kabul edilecek.
  • Her firma yalnızca bir parsel için başvuruda bulunabilecek.
  • Gıda parsellerine ise sadece gıda üretimi yapan firmalar başvurabilecek.

30 Haziran 2025 tarihli yönetim kurulu kararına göre, altyapı katılım payının %50’si peşin, kalan tutar ise 3 yıl içinde, yılda iki eşit taksitte ödenecek.

Batman OSB yönetimi, yatırımcıların süreci dikkatle takip etmeleri ve başvurularını eksiksiz şekilde tamamlamaları gerektiğini vurguladı.

Bir Yorum Yazın

Ziyaretçi Yorumları - 0 Yorum

Henüz yorum yapılmamış.